Search

Kowan ZU-100 Still Worker

Kowan ZU-100 Still Worker

  • Noise and vibration free sheet pile installation
  • Installation of ‘Z’ sheet piles 575-708
  • Installation of ‘U’ sheet piles 600-750
  • Ideally suited to built up and sensitive areas
  • Self-travelling
Kowan ZU-100 Still Worker specification drawing

General information

Max stroke750mm
Max press force1000kN
Max extraction force1100kN
Tilt (+/-)5 degrees
Operating weight12260kg
Transport weight (including stand)14660kg
Reaction stand specifications drawing.

Reaction stand

Height462mm
Weight2400kg
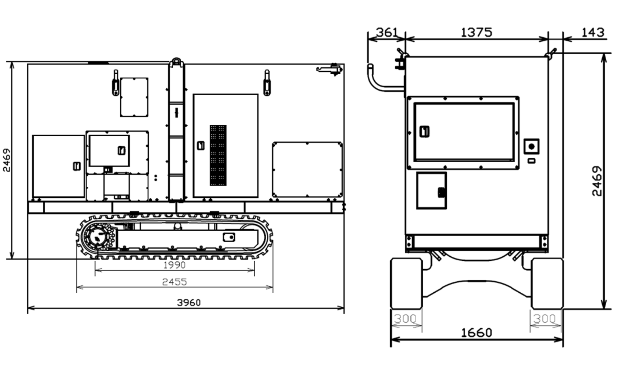
TE-200C4 Powerpack specifications drawing.

TE-200C4 Powerpack

Engine tier 3BCAT C7.1
Fuel capacity350lts
Hydraulic oil capacity500lts
Operating weight7150kg

Stay up to date with project updates? Receive our project updates in your mailbox!